B 11 APARTMENT BUILDINGS

B 11 APARTMENT BUILDINGS

Activity:
architectural and engineering design (fullscope)
Location:
Fonyód, Hungary
Year:
2025
Status:
building permit plan
Size:
3600 m2

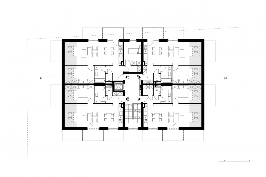
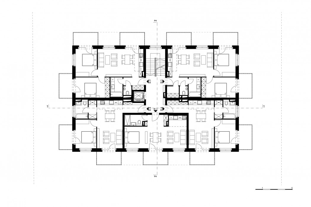
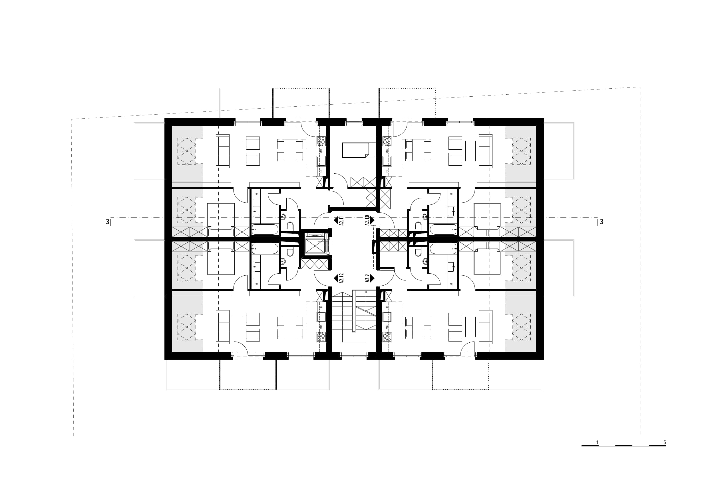
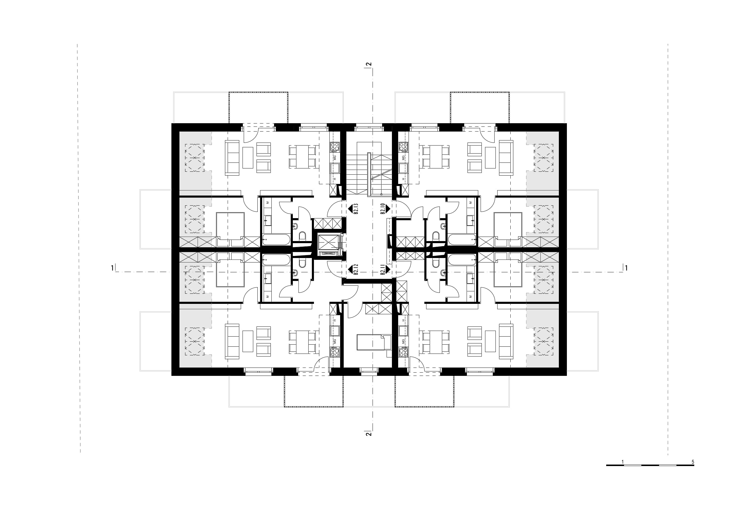
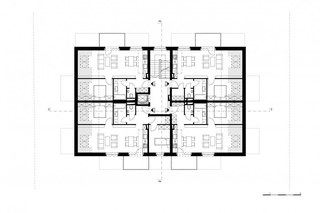
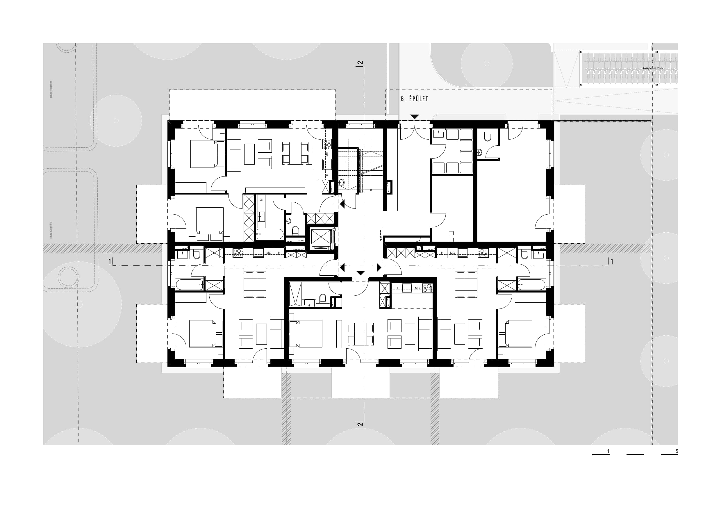
In order to fit in with the family home environment, but also taking into account the environmental conditions and technical/functional aspects, we are installing four buildings with identical details, each with 12-13 apartments, for a total of 50 apartments. Due to soil conditions and foundation requirements, we have endeavored to design the ground floor + 1 floor + attic buildings in as uncomplicated a manner as possible, using a very rational structural system, so that their massing and appearance are still striking in their simplicity. This goal was achieved by using a double (actually triple) gable roof covering, which is more similar in proportion to the massing of family houses, dividing the roof surfaces rotated perpendicular to the longitudinal axis of the planned building mass, as well as the dynamics of the facade openings and balconies – which is further enhanced by the non-traditional but environmentally appropriate color scheme of the buildings.