Golf Academy Center & Club

Golf Academy Center & Club

Activity:
architecture, engineering, interior and landscape design (fullscope)
Location:
Kecskemét, Hungary
Year:
2014
Status:
construction plans
Size:
3170 m2, 36 ha landscaping

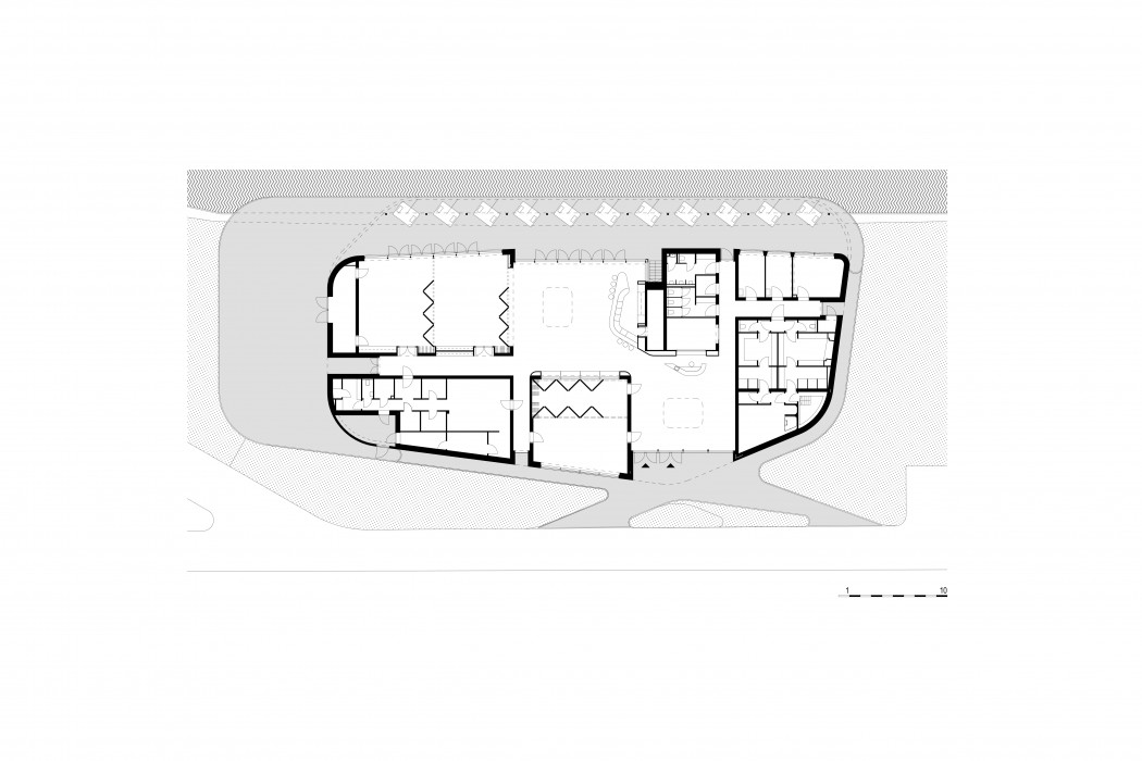
Concept: 9-court city golf club and unique events center. The developer plans to use the surface of the 36 ha area which belongs to the water supply area of the municipality. About half of the area is taken up by rainwater storage lakes, thus we put the main building an a teebox integrated into it to the shore of the largest lake, with a modern driving range installed on to the water surface. The pitching-, chipping- and putting greens serving to practice fines hots, can be found next to the modern club building. This is also where the 9 courts start and end. The modern main building contains, besides the club areas, meeting rooms that can be rented, an event room for 100 people and a well-equipped kitchen, as well as a relaxing roof terrace with Jacuzzi and bar, thus providing a unique home for events happening in town.