Hotel Vision

Hotel Vision

Activity:
architecture, engineering and interior design (fullscope)
Location:
Budapest 5th district, Hungary
Year:
2020
Status:
built
Size:
8485 m2

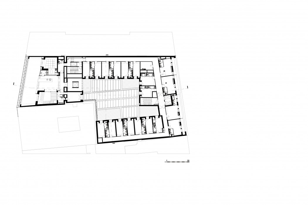
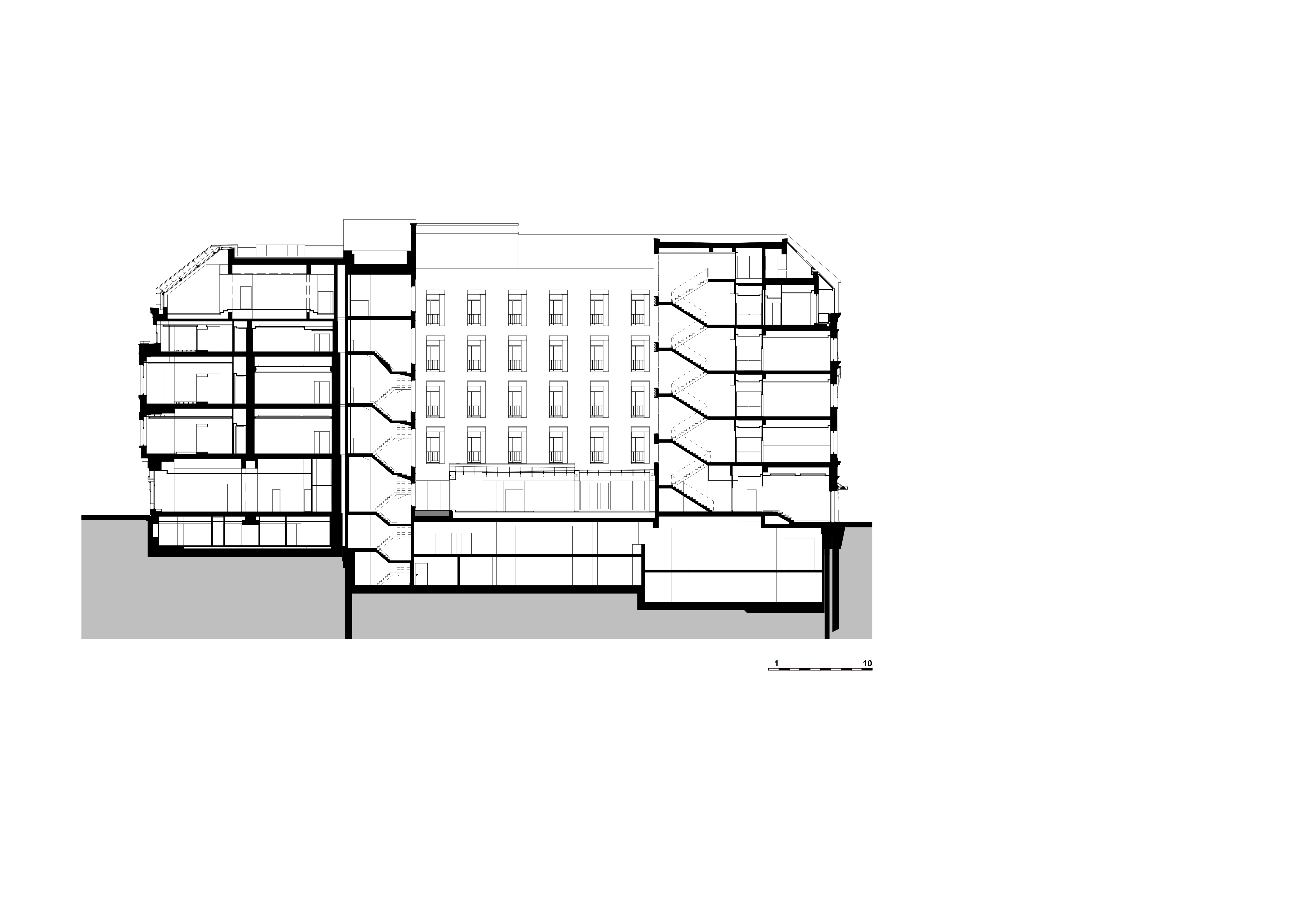
The property, originally designed as a residential building, has changed its function and spaces several time sthroughout its 125 years of existence. The designed building mass is U-shaped with a closed courtyard. A building of -2 underground, ground floor plus 4 levels will be created by demolishing 80% of the existing buildings and rehabitating both plots to their maximum capacity. The main facade of the building - dating back to the beginning of the 1900’s and created in secessional style - facing the river will be renewed, keeping its original divisions. A new glass roofing and a perforated lace-like aluminum composite exterior shading structure will be introduced - the latter ensuring visual transition between the historical facade and the modern roof. The inner spaces of the lobby and the smaller blocks in the courtyard provide for a harmonius inner and outer sensation of space. The building will be enhanced with a fine dining restaurant, an 80-person conference room, shop, bar and fitness-wellness areas.