Ybl Miklós Memorial House

Ybl Miklós Memorial House

Activity:
architectural concept design
Location:
Székesfehérvár, Hungary
Year:
2015
Status:
national open architectural competition - awarded
Size:
1720 m2

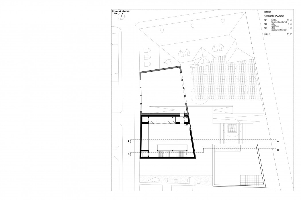
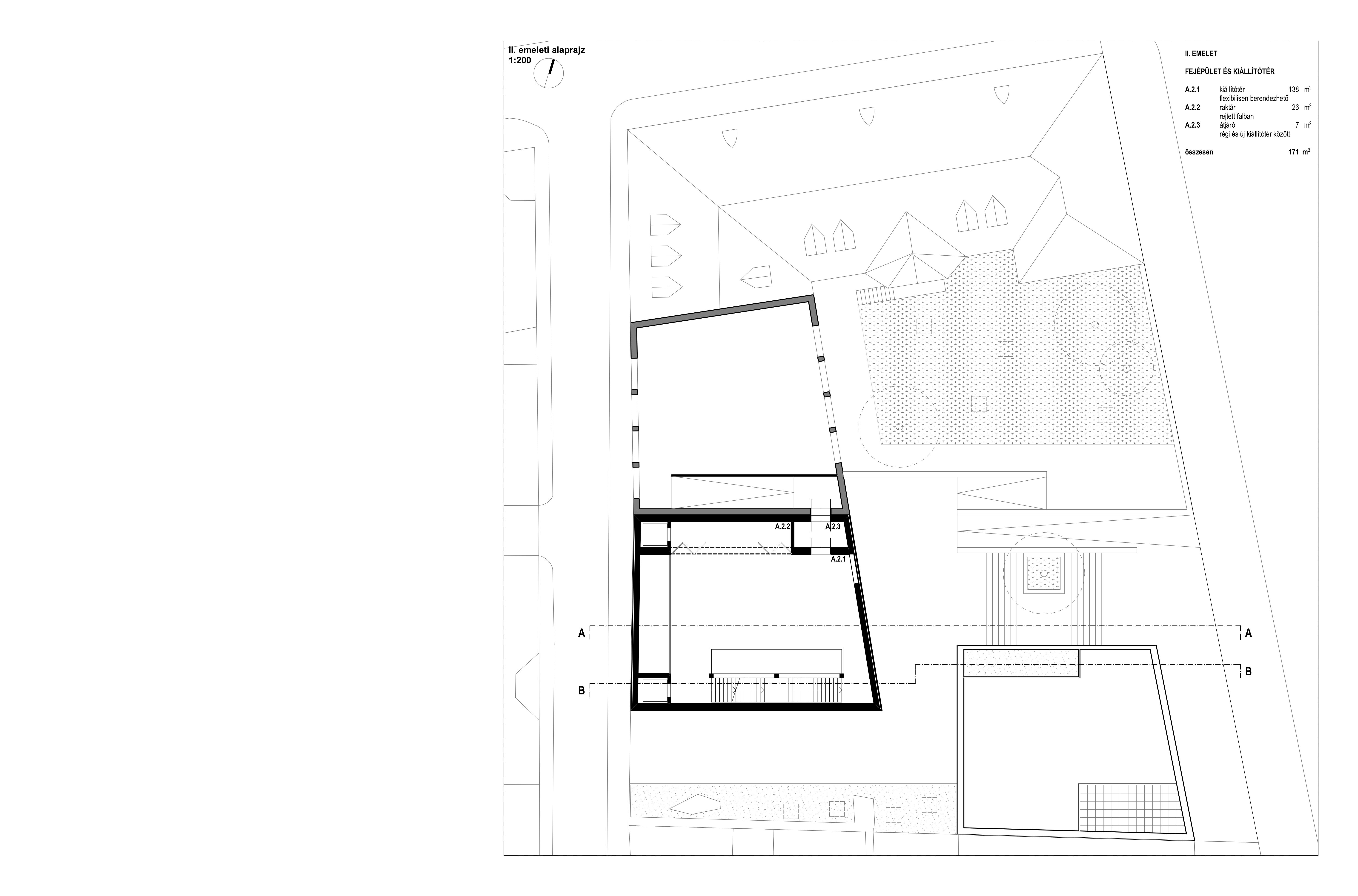
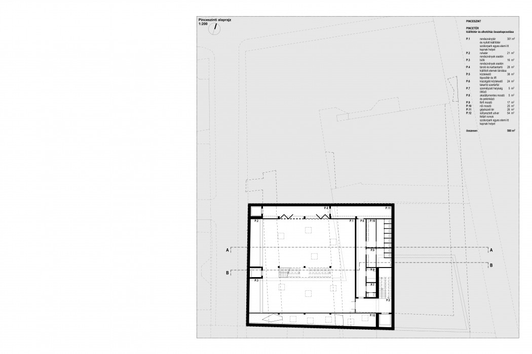
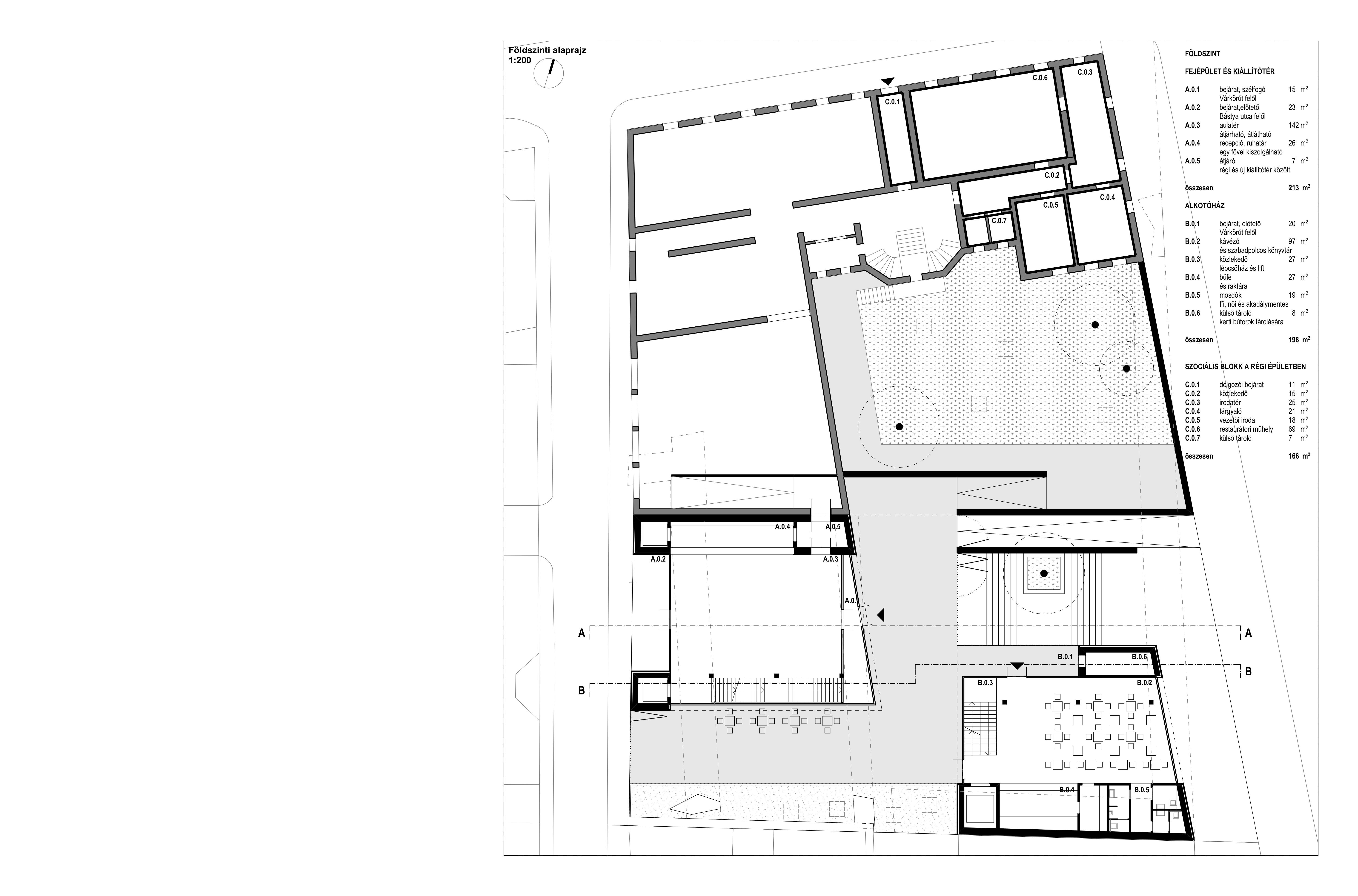
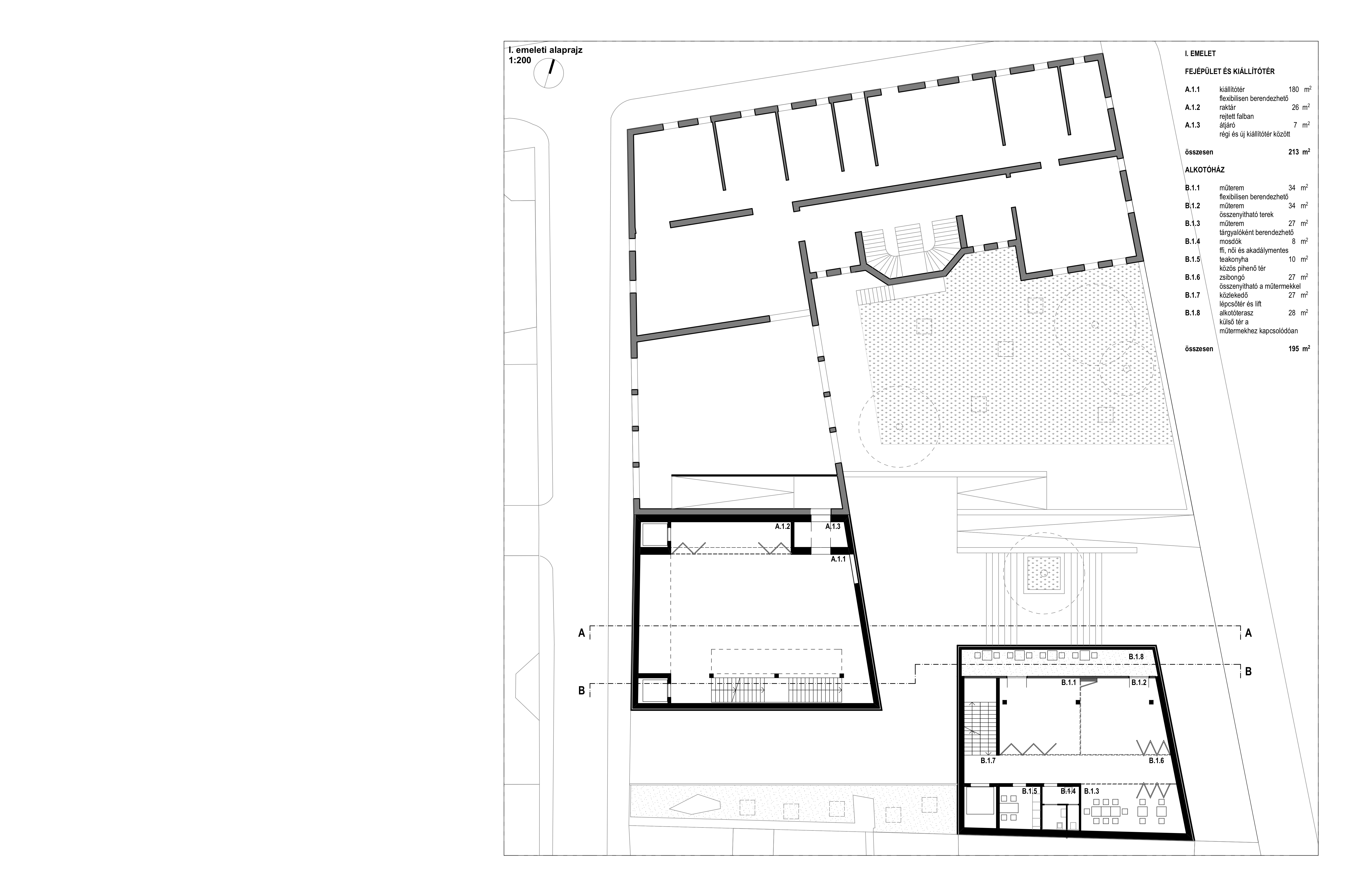
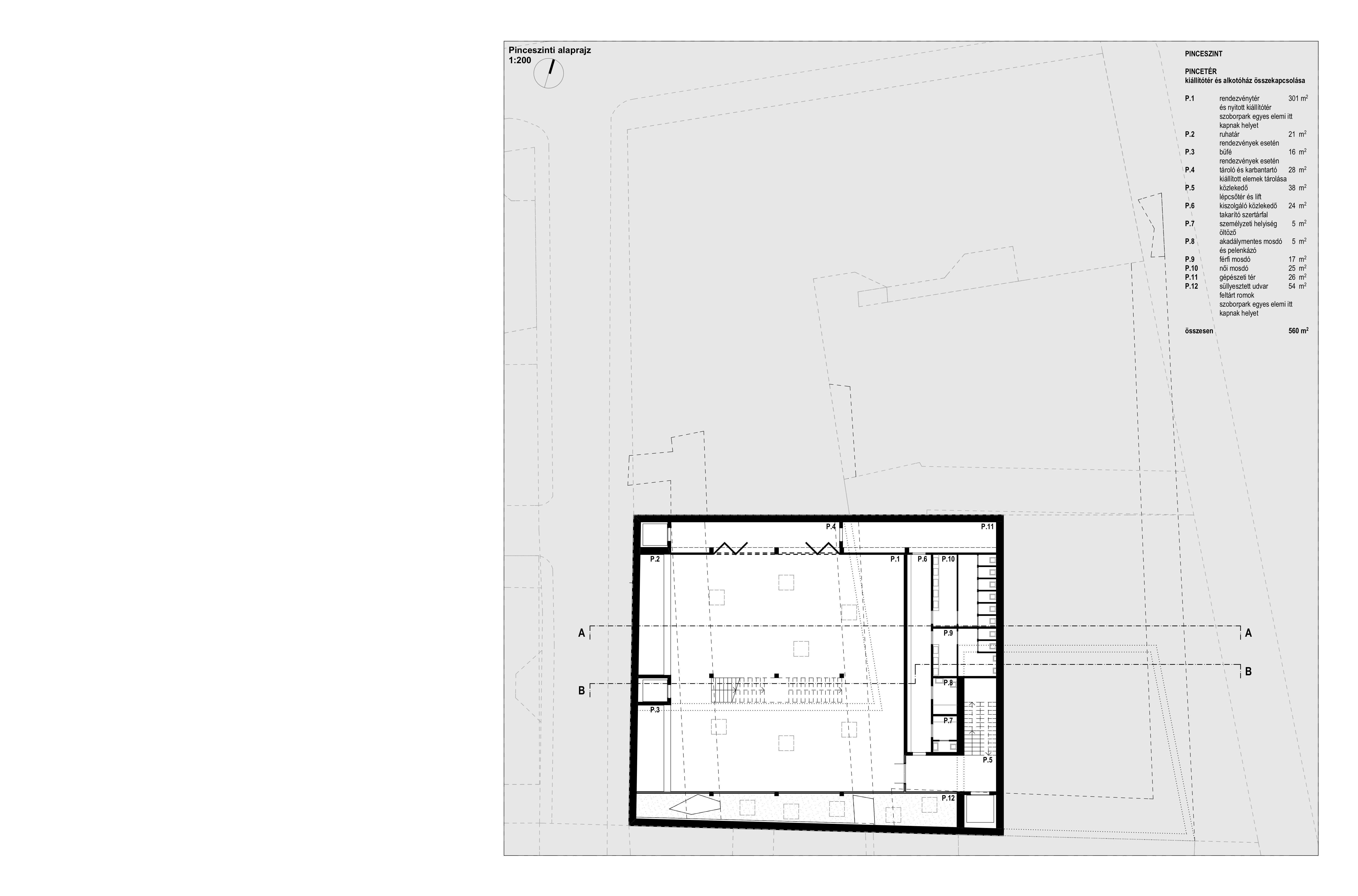
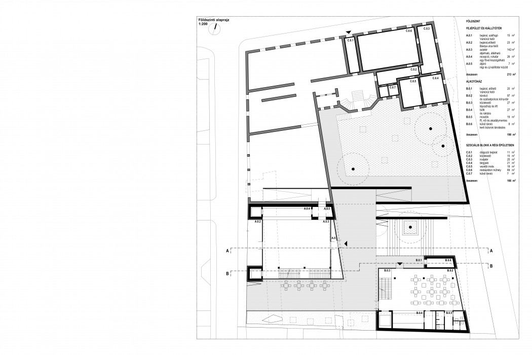
The call for tender required to design a modern public building into a complex/ multiple environment, that consists of buildings of different ages. The design concept was to organically fit the building in the enviroment, without repeating the mass and the roof shape of the existing building, but the perfect position of the building, adequate space scale and rational facedes.Thus, we created two simple but character cubes, placed on the required surfaces big openings, and used traditional material. We organized the reqested main functions according to use into two cubes. One group consists of the exhibition area, background units and the reception, was located to face the calmer street, continuing the old building. The other group consists of informaler functions; ateliers, cafe and library, placed towards busier direction. Thus, we designed two separate mass, one for art gallery and the other one for the cerative process, which were connected undergorund in the basement.