Cookie / Süti tájékoztató
Tájékoztatjuk, hogy a kasdesign.hu honlap felhasználói élmény fokozásának érdekében cookie-kat alkalmazunk. A honlapunk használatával ön a tájékoztatásunkat tudomásul veszi.
Rendben
<ész>kész
B 11 TÁRSASHÁZAK

B 11 TÁRSASHÁZAK

Tevékenység:
generáltervezés
Helyszín:
Fonyód, Magyarország
Év:
2025
Státusz:
építési engedélyezési terv
Méret:
3600 m2

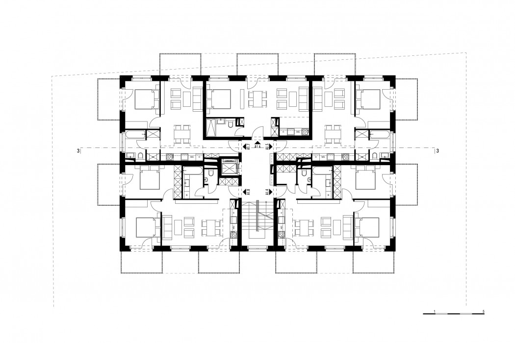
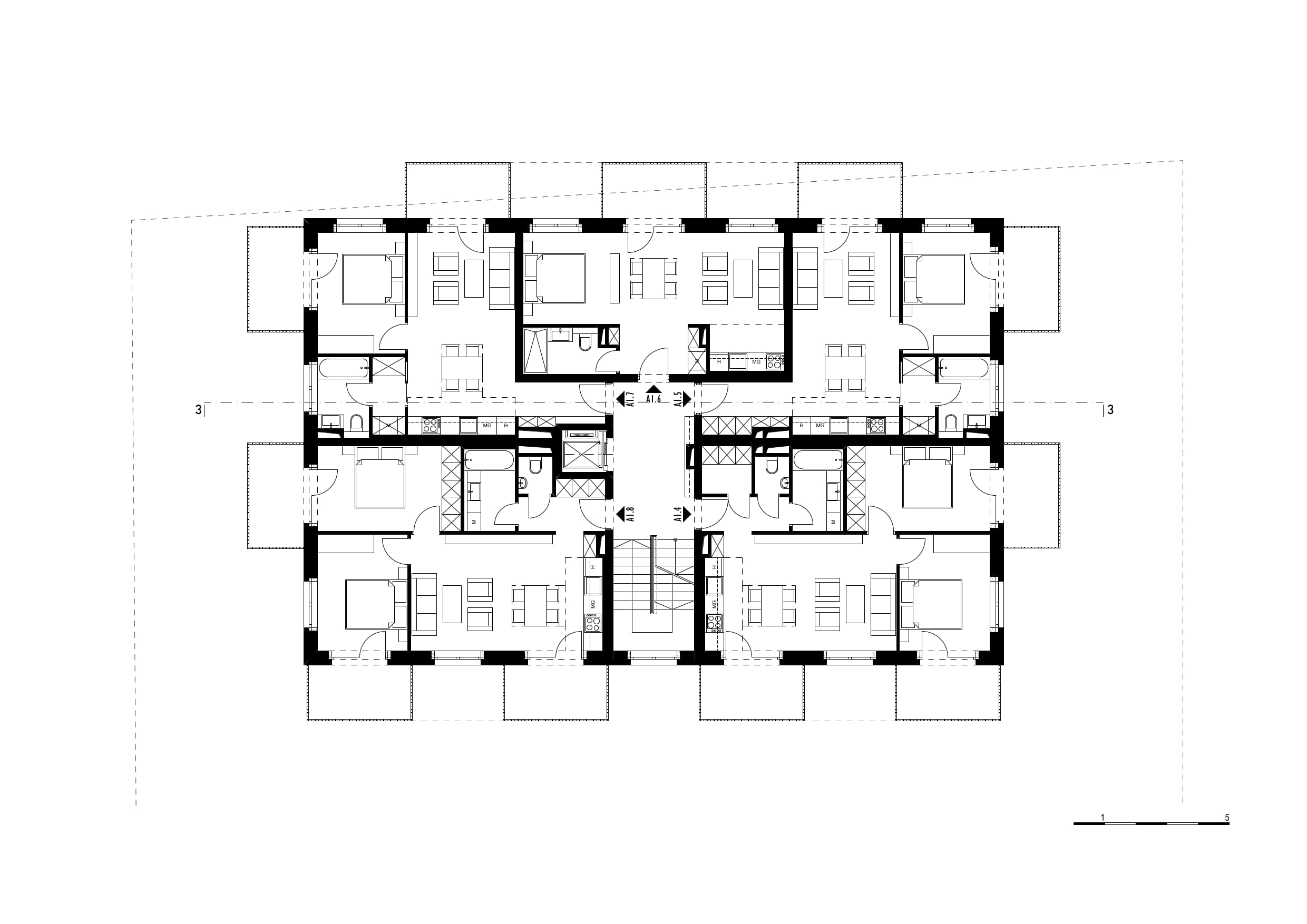
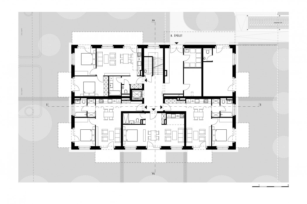
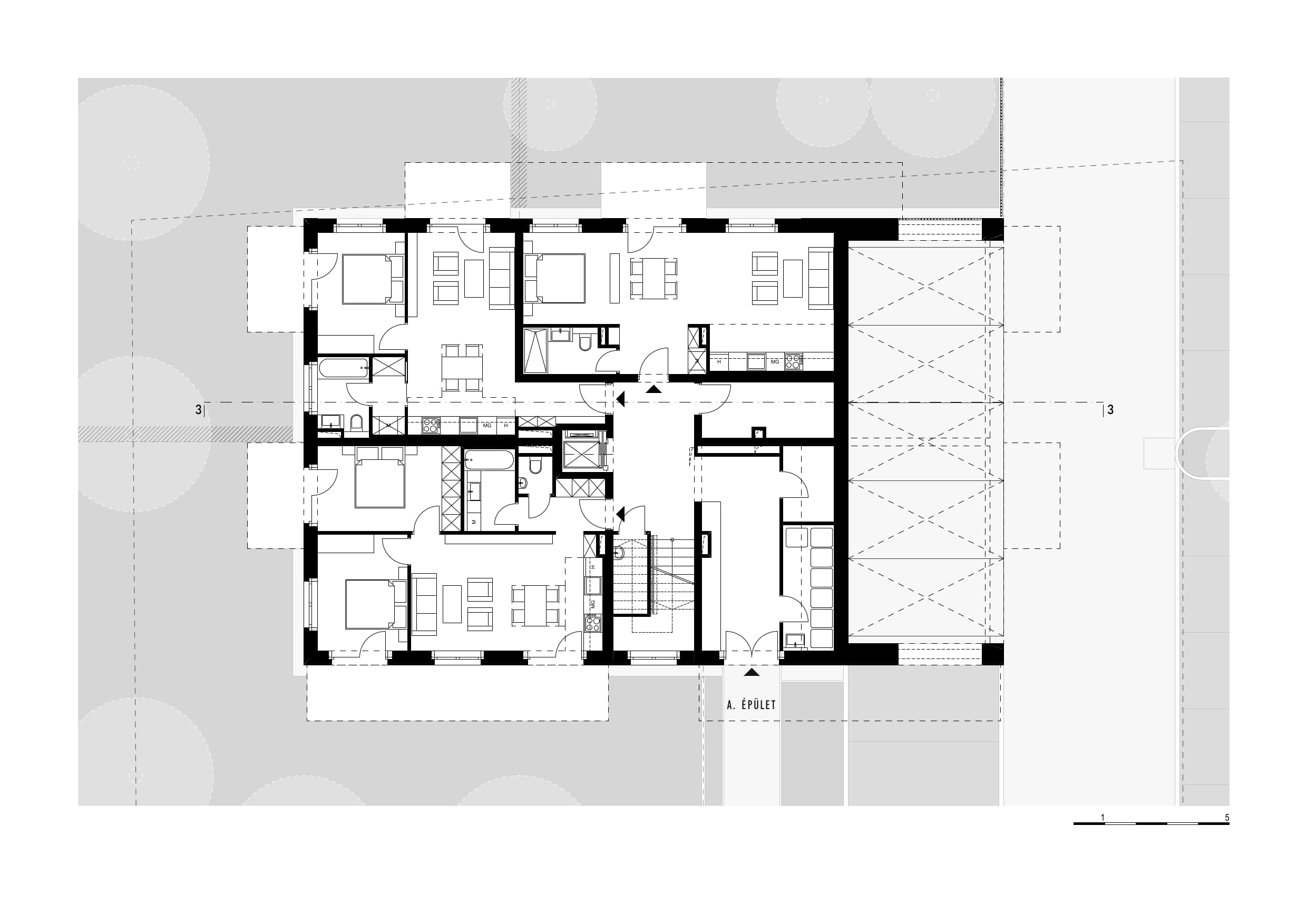
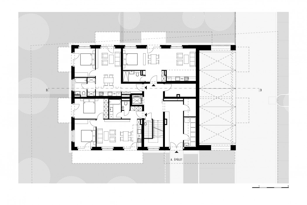
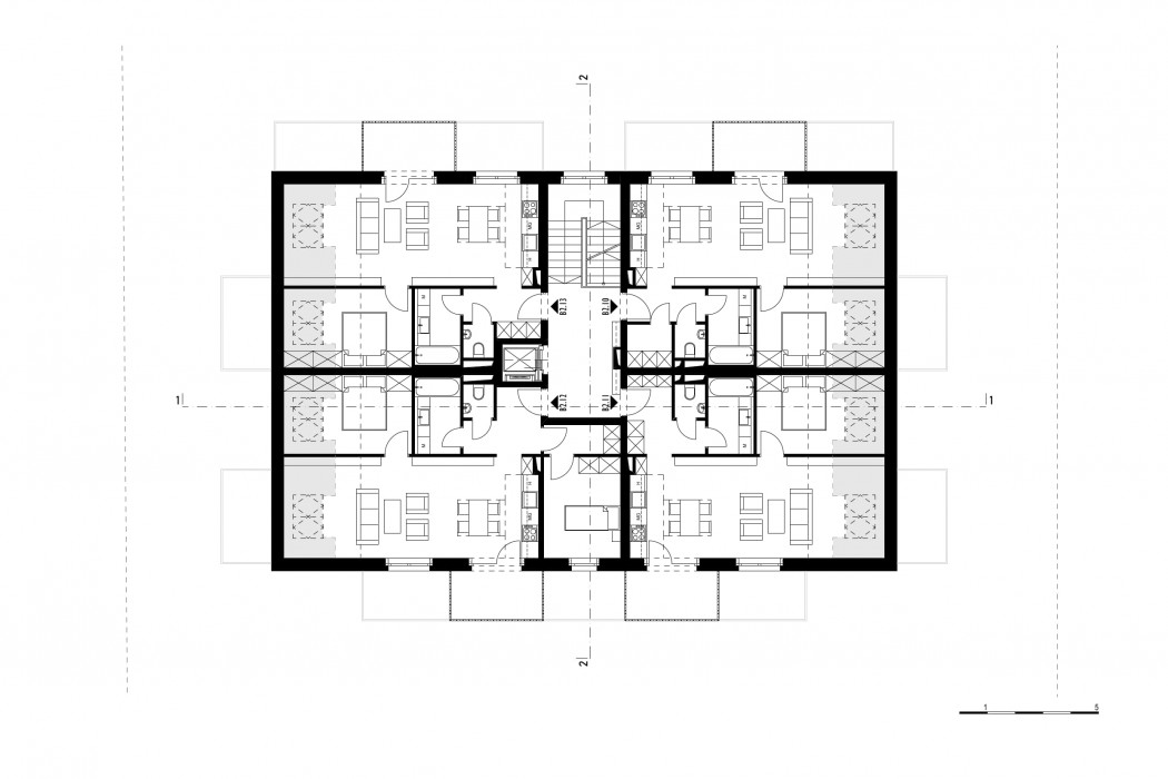
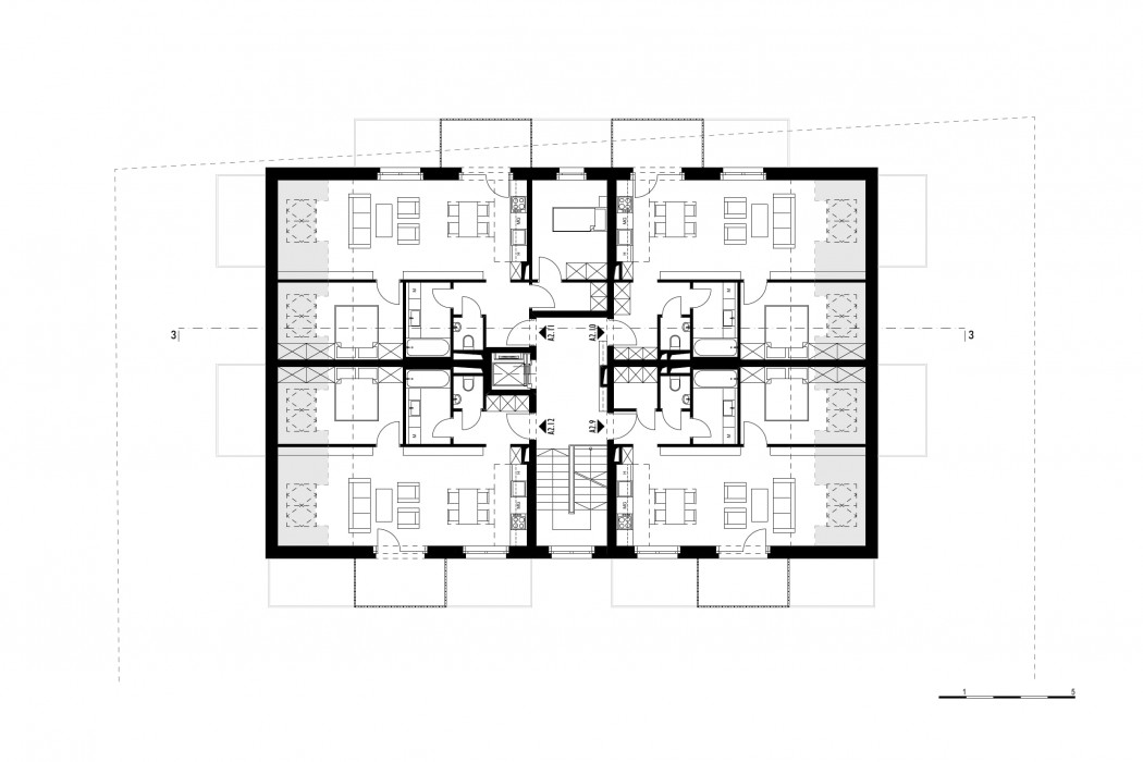
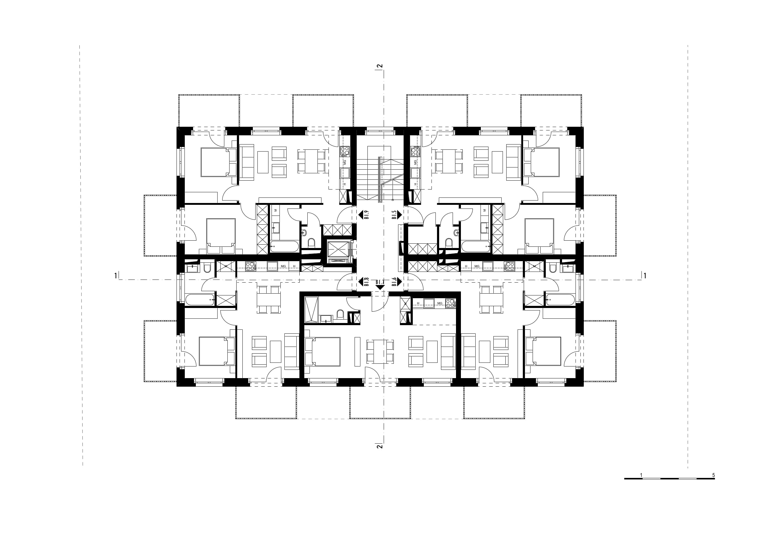
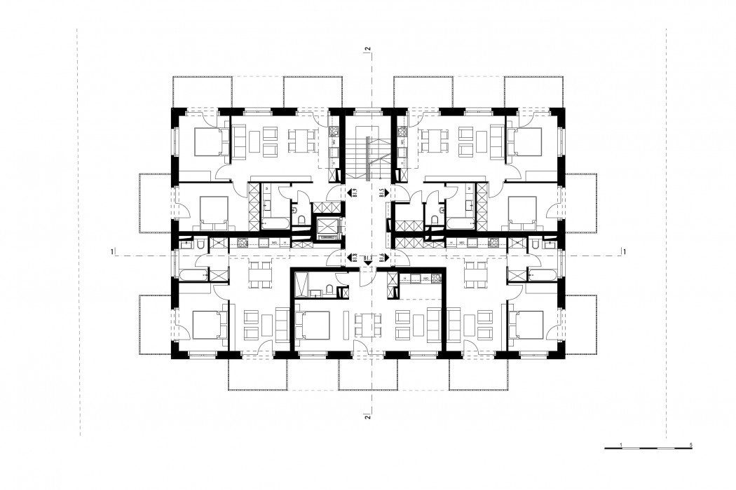
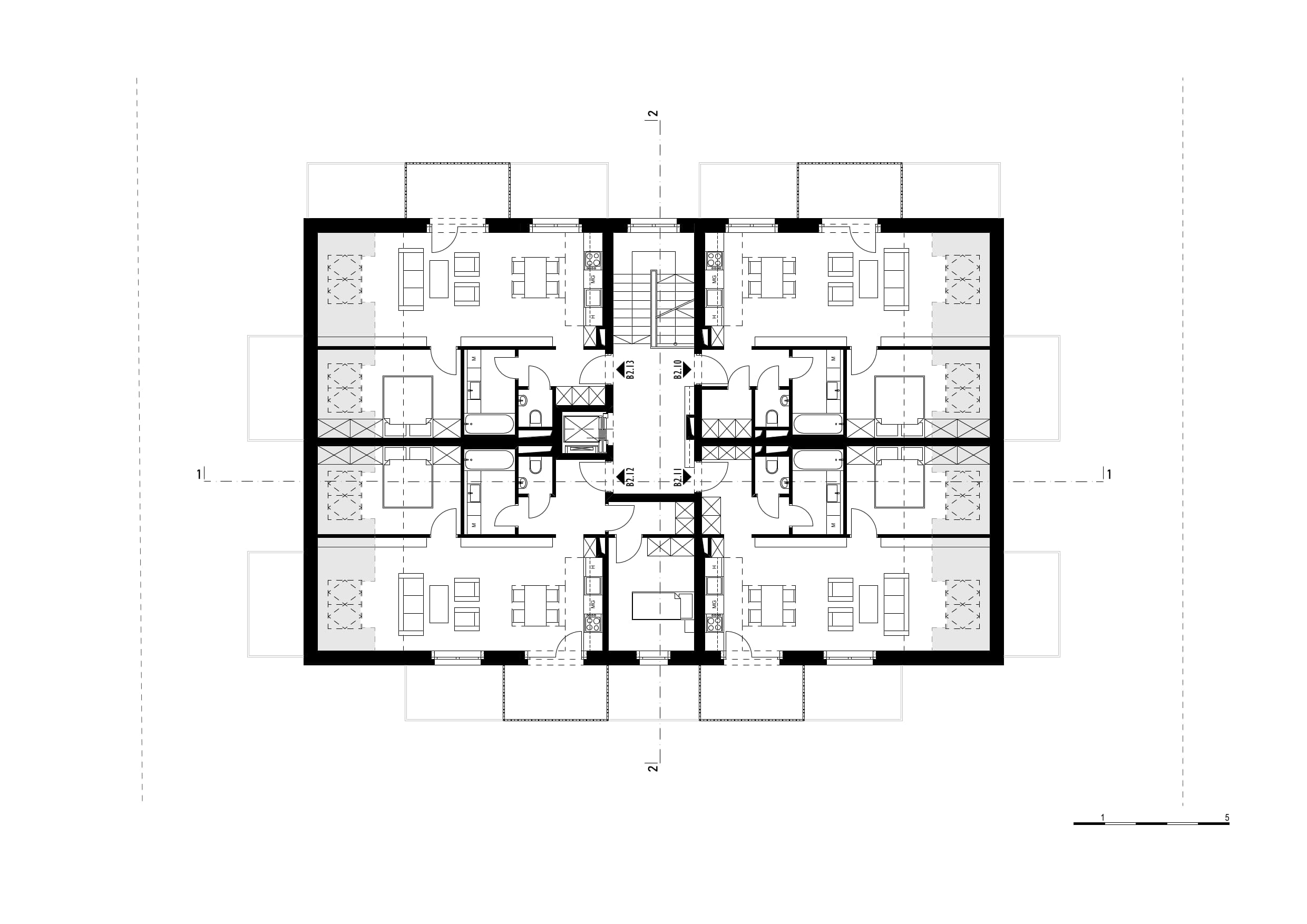
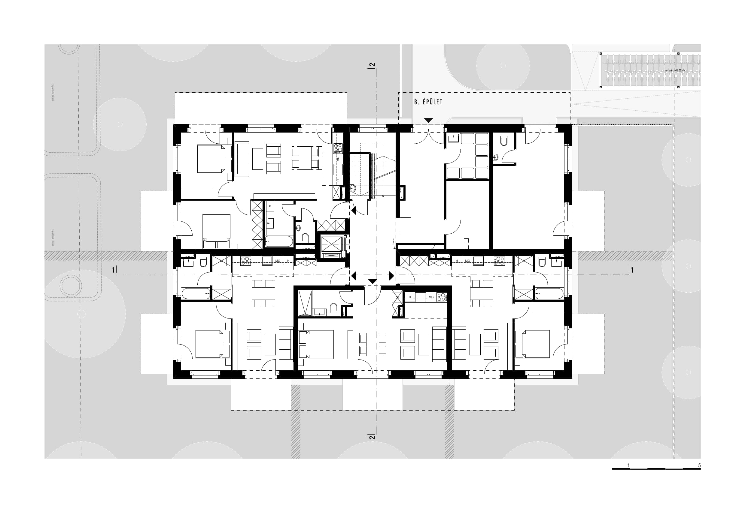
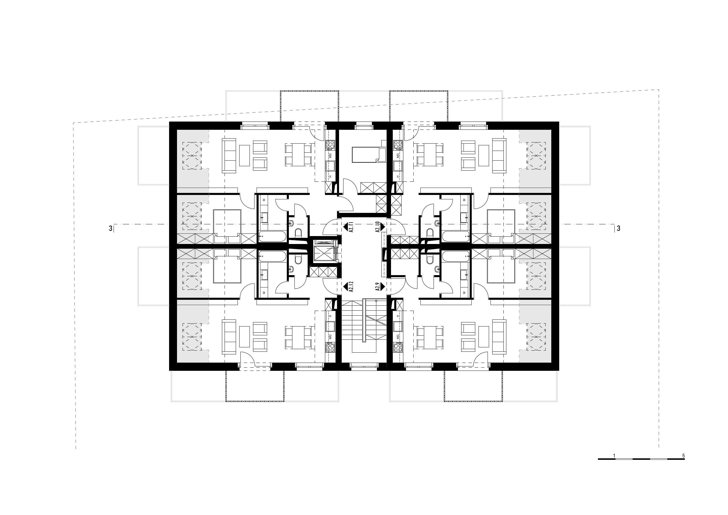
A családi házas környezethez illeszkedés érdekében, de a környezeti adottságokat és a műszaki/funkcionális szempontokat is figyelembe véve 4 db, jellemző részleteiben azonos épületet telepítünk, egyenként 12-13 db, összesen 50 db lakással. A földszint + 1 emelet + tetőtér kialakítású épületeket a talajviszonyok és az alapozási szükségszerűségek okán igyekeztünk minél kevésbé tagolt módon, nagyon racionális szerkesztési és szerkezeti rendszerrel megformálni úgy, hogy azok tömegalakítása, megjelenése mégis markáns legyen a maga egyszerűségében. Ezen célt a családi házas tömegalakításokhoz arányaiban tovább közelítő, a tetőfelületeket felosztó, a tervezett épülettömeg hossztengelyére merőlegesen elfordított dupla (valójában tripla) nyeregtetős lefedéssel, valamint a homlokzati nyílás- és erkélyosztás dinamikájával igyekeztünk elérni – amit az épületek nem hagyományos, de a környezetéhez illeszkedő színválasztása tovább erősíthet.