Cookie / Süti tájékoztató
Tájékoztatjuk, hogy a kasdesign.hu honlap felhasználói élmény fokozásának érdekében cookie-kat alkalmazunk. A honlapunk használatával ön a tájékoztatásunkat tudomásul veszi.
Rendben
<ész>kész
Szigetszentmiklósi Ref. Ált. Iskola

Szigetszentmiklósi Ref. Ált. Iskola

Tevékenység:
építészeti koncepció tervezés
Helyszín:
Szigetszentmiklós
Év:
2025
Státusz:
nyílt országos tervpályázat - megvétel

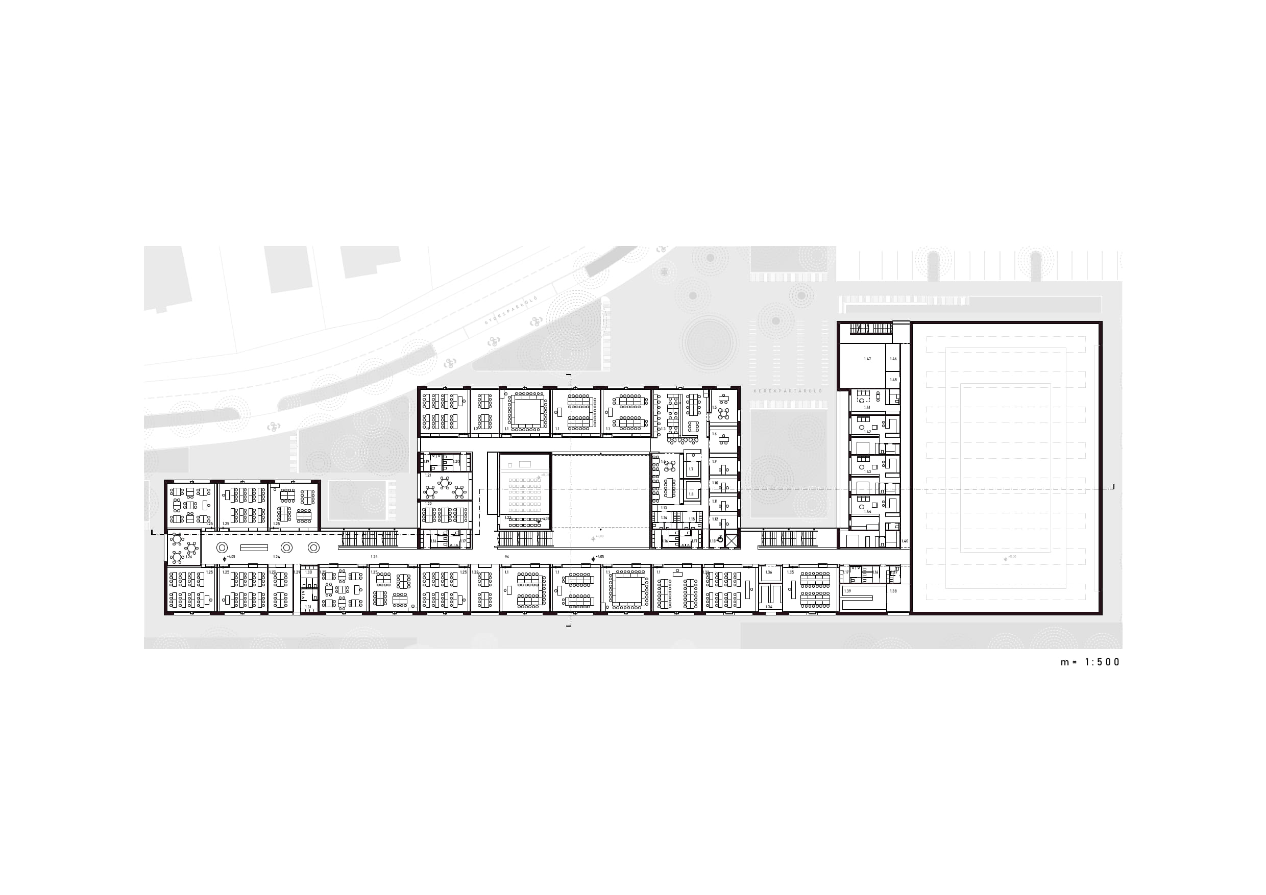
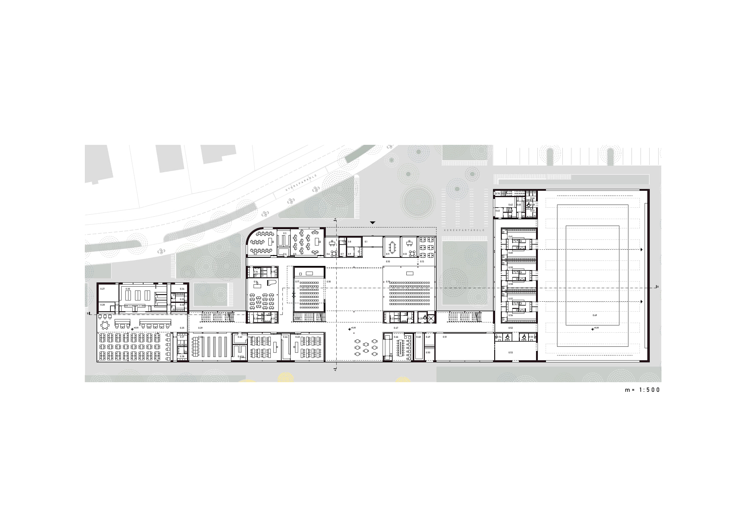
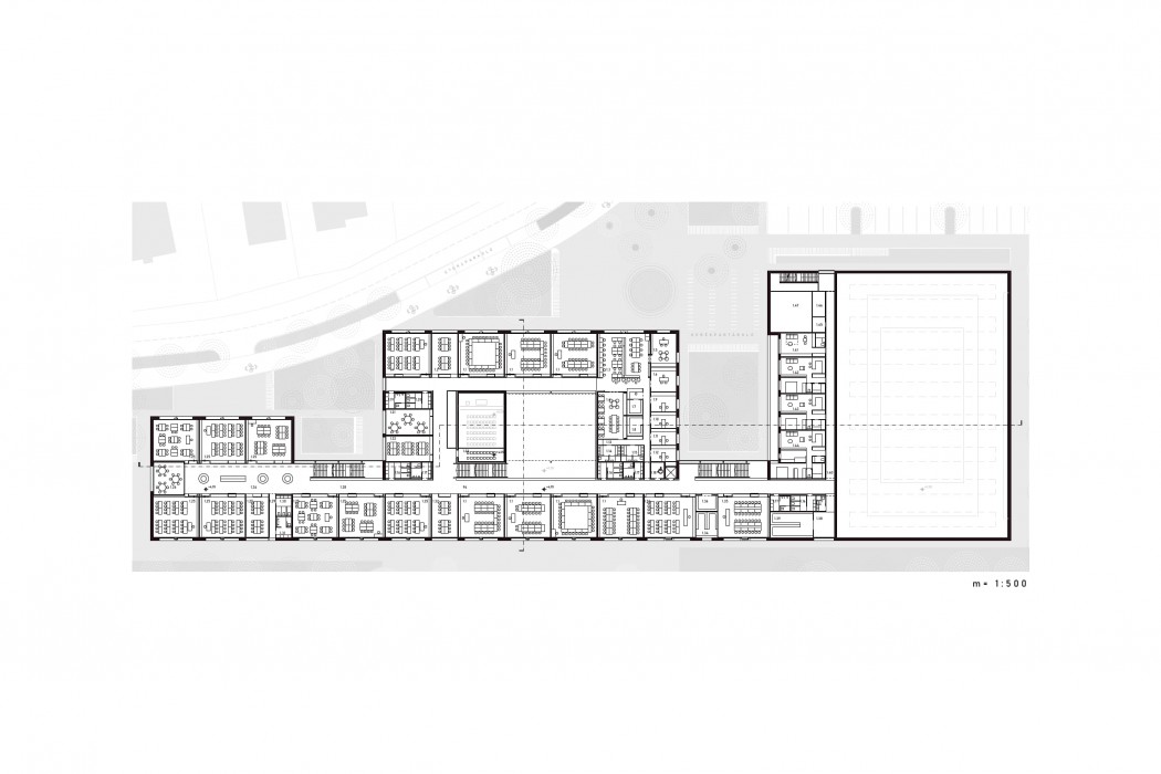
Telepítési  és tömegalakítási szempontok:
- Az épület külső, közforgalmi fogadó és megérkezési terei hiánypótlóan növeljék a közhasználatú városi terek és zöldfelületek mennyiségét és minőségét.
- Minél kisebb beépítési értékkel bíró, ugyanakkor funkcionális épülettelepítés megvalósítása.
- Fsz + 1 emeletnél ne létesítsünk több szintes épületet - tekintettel a környező beépítésre.
- Ne létesítsünk terepszint alatti tereket.
- Lehetőség szerint aktív módon kacsoljuk össze a Bucka tó parkos felületét az újonnan létrehozandó sport és játszóudvari területekkel.

A nagyobb alapterületű funkciók telepítési lehetőségeit és a felsorolt célokat egyaránt figyelembe véve az épületet a T telekforma szárainak összemetsződésébe pozícionáltuk, térfalként az utcai közhasználatú, és az iskola oktatási időszakában kizárólag a diákok számára fenntartott külső telekrészek/udvarok között. Az így létrejövő térfal tömegrészeit széthúztuk, közterületi térbővületeket képeztünk. A kompakt tömeget nagyméretű földszinti homlokzati lyukasztásokkal, a külső térrészek közötti átlátásokkal, valamint a Csónak utca görbületét lekövető, mélységében változó térfal pozíciókkal oldottunk fel.